Эстакада для автомобиля, сделанная своими руками - очень удобное решение для проведения различных работ под кузовом машины. Специально оборудованные для этих целей площадки встречаются редко, поэтому решить эту проблему можно с помощью самодельной сборной площадки
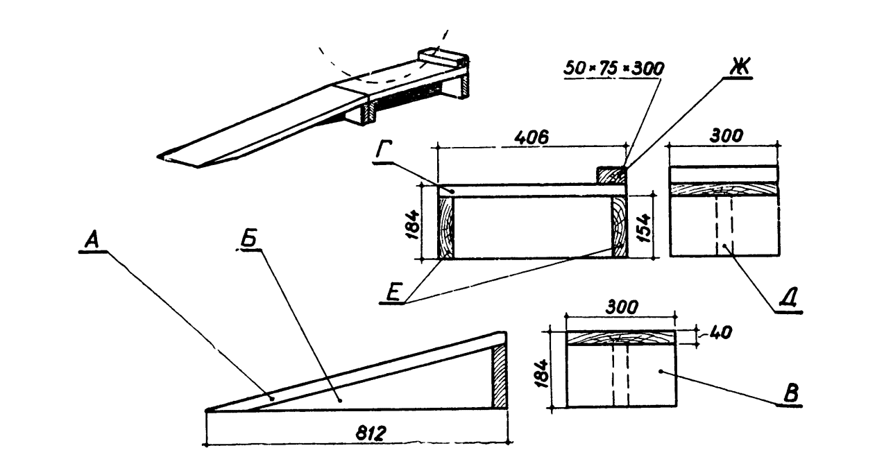
Площадка состоит из двух частей — наката и основания,
которые сделаны из досок толщиной 30
мм . Площадку можно установить в несколько минут на
любом удобном для автолюбителя месте, а затем быстро и с удобством произвести необходимый ремонт. Конструктивно площадка устроена так, что, несмотря на небольшую
толщину досок, гарантированно обеспечивает требуемую прочность.
Для изготовления эстакады для авто необходимо подобрать доски (желательно из твердых пород древесины) сечением 30 X 300
мм и брусок сечением 75 X 50 мм для упора. Доски тщательно обрабатывают инструментом, чтобы затем их
было легче красить.
Детали по своей форме тоже достаточно просты. Продольную перегородку
наката мастерят из одной доски размером 30 X 154 X 690 мм, распилив ее по
диагонали. Собирать площадку желательно на шурупах, а не на гвоздях. Чтобы
площадка дольше прослужила, ее надо пропитать горячей олифой и покрасить.



